Du 25.11.25 au 03.02.26

Classe : DSAA1 Design d'espace


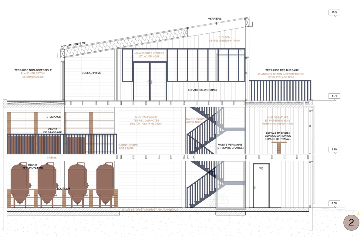
BRASSERIE LA RENNEIZH


architecture d'intérieur
En partenariat avec la micro-Brasserie La Renneizh à Rennes

Les étudiant.e.s en DSAA1 Design d'espace ont imaginé le devenir de la micro-brasserie La Renneizh, installée dans un ancien entrepôt, dans le quartier de Bréquigny. Les propriétaires de la brasserie souhaitent rénover le bâtiment et ouvrir à terme un bar, une petite restauration, une boutique et des bureaux ouverts à la semaine. Des évènements sont aussi organisés régulièrement (dégustation, fêtes,..). L'ampleur de la rénovation pouvait être frugale sans toucher au bâti existant ou bien être ambitieuse, en intégrant des modifications des façades, une surélévation, une intervention dans l'espace urbain ou un nouveau programme intégrant des espaces locatifs (logement, bureaux..). Après avoir fait le relevé du bâtiment et rencontré les acteurs de la brasserie, les étudiantes ont développé leur projet en binôme. Le projet s'est finalisé par la construction d'une maquette détaillée, à l'aide d'une découpe laser Trotec, et par la présentation des 5 projets aux commanditaires.